Glückliche Chance in Krefeld-Fischeln: Hübsches Eckhaus mit Garage, ideal für die große Familie

47807 Krefeld, Reihenendhaus zum Kauf

Objektbeschreibung

Beschreibung

Im begehrten FIscheln liegt dieses solide gebaute Eckhaus. Es wurde 1979 in 2 1/2 geschossiger Massivbauweise mit Vollkeller erstellt, 5 Jahre später aufgestockt und mit einem Satteldach versehen (Baugenehmigung liegt vor).

Nicht nur die Lage mit fußläufiger Nähe zum Fischelner Ortskern überzeugt sondern vor allem das Raumangebot: Dank der nachträglichen Aufstockung stehen insgesamt 5 Schlafzimmer und 2 Bäder zur Verfügung. Die perfekte Gelegenheit für Familien mit Kindern.

Das Erdgeschoss präsentiert sich klassisch: Es empfängt Sie ein angenehm großer Dielenbereich mit praktischem Einbauschrank, der geradeaus durchführt in den schönen Wohnbereich mit angrenzender Sonnenterrasse. Der Garten mit Südausrichtung verfügt über ein praktisches Gartenhäuschen und idealerweise ein Hintertörchen, über das bequem die Gartenabfälle entsorgt werden können.
Zurück im Haus runden eine separate, geräumige Küche und ein Gäste-WC mit Fenster das Raumangebot ab.

Eine Stahlharfentreppe mit Holzstufen führt ins das Obergeschoss des Hauses. Hier gibt es neben einem großen Elternschlafzimmer zwei Kinderzimmer sowie ein hellgefliestes Badezimmer mit Dusche und Wanne.

Das ausgebaute Dachgeschoss erreichen Sie über eine Stahlharfentreppe mit Holzstufen. Hier finden Sie zwei weitere Kinderzimmer sowie ein zusätzliches Bad, das mit einer ebenerdigen Dusche versehen ist.

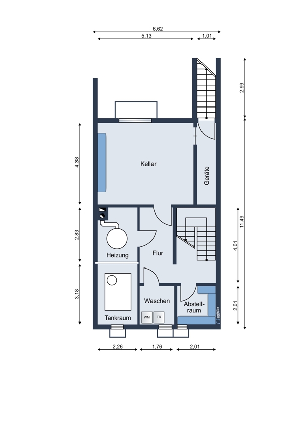
Im Keller des Hauses gibt es neben dem Heizraum mit Ölzentralheizung nebst Warmwasseraufbereitung drei weitere Räume zum Lagern und Waschen. Eine Kelleraußentreppe gewährt Zugang zur Terrasse bzw. zum Garten.

Lage

Das Haus befindet sich im begehrten Fischeln, zwischen Erkelenzer Str. und Altmühlenfeld.

Fischeln ist der südlichste Stadtteil von Krefeld, der sich aufgrund seiner gewachsenen Struktur und perfekten Anbindung nach Düsseldorf großer Beliebtheit erfreut. Sowohl über die A44 als auch die A57 sind Sie in ca. 20 Minuten in der Landeshauptstadt.
Ebenso ist dies bequem mit öffentlichen möglich: Die Haltestelle der Rheinbahnlinie U76 befindet sich ganz in der Nähe.

Sie finden in Fischeln ein großes Angebot an Einkaufsmöglichkeiten, Ärzten und Apotheken und einem kleinen und feinen Wochenmarkt, der donnerstags stattfindet

Ein Hallenschwimmbad, das Freibad Neptun, der Fischelner Stadtpark, Tennisclubs und zahlreiche Sportvereine bieten eine breite Palette an Freizeitmöglichkeiten. Wunderschöne Radtouren und Spaziergänge über die Fischelner Felder bis nach Bösinghoven lassen keine Wünsche an Ausflüge ins Grüne offen.

Kindergärten, Grundschule und weiterführende Schulen (Haupt-, Realschule und Gymnasium) sind bequem erreichbar. Radtouren Richtung Forstwald und zum Rhein reizen.

Ausstattung

- Isoverglaste Kunststofffenster
- Schiebetüre zum Garten
- Elektrisch verschattbare Pergola
- Ölzentralheizung mit zentraler Warmwasserversorgung
- Ausgebautes Satteldach
- Kelleraußentreppe
- Einzelgarage am Haus
- Wannenbad
- Duschbad
- gedämmter Spitzboden
- Ruhige Südlage

Sonstige Informationen

Es liegt ein Energieverbrauchsausweis vor.
Dieser ist gültig bis 10.10.2035.
Endenergieverbrauch beträgt 159.00 kwh/(m²*a).
Wesentlicher Energieträger der Heizung ist Öl.
Das Baujahr des Objekts lt. Energieausweis ist 1979.
Die Energieeffizienzklasse ist G.

Umgebungskarte

Die dargestellte Position der Immobilie ist nur eine ungefähre Angabe.

Karte in Google Maps öffnen...

neu

Objektdaten

  • Objekt ID
    MM553
  • Objekttypen
  • Adresse
    47807 Krefeld
  • Wohnfläche
    158 m²
  • Grund­stücks­fläche
    300 m²
  • Nutzfläche
    50 m²
  • Zimmer­anzahl
    6
  • Schlafzimmer
    5
  • Badezimmer
    2
  • Separate WC
    1
  • Befeuerung
    Ölheizung
  • Entfernungen
    Grundschule: 1 km
    Realschule: 2 km
    Gymnasium: 2 km
    Flughafen: 23 km
  • Baujahr
    1979
  • Zustand
    Renovierungsbedürftig
  • Verfügbar ab
    Anfang 2026
  • Stellplätze
    Garage: 1
  • Käufer­provision
    3,57 % incl. MwSt. Käufercourtage
  • Kaufpreis
    418.000 EUR

Ausstattung / Merkmale

  • Balkon/Terrasse Süd
  • Garage
  • Ölheizung
  • Separates WC

Energieverbrauchsausweis

  • Gültig bis
    10.10.2035
  • Baujahr
    1979
  • Primärenergieträger
    OEL
  • Energie­effizienz­klasse
    G
  • Energie­verbrauchs­kennwert
    159.00 kWh/(m²·a)

Kontaktdaten

  • Name
    Frau Lina Mansel
  • Firma
    Königshof Immobilien GmbH
  • Adresse
    Heideckstr. 183
    47805 Krefeld
  • E-Mail Zentrale
    info@koenigshof.com
  • E-Mail Direkt
    info@koenigshof.com
  • Tel. Zentrale
    00492151391666
  • Tel. Durchwahl
    00491604400455
  • zum Kontaktformular

Direktanfrage