Ruhige Lage Nähe Stadtgarten: Geschmackvoll saniertes 4-Familienhaus

47798 Krefeld / Stadtmitte, Mehrfamilienhaus zum Kauf

Objektbeschreibung

Beschreibung

Dieses attraktive 4-Familienhaus befindet sich in zentraler Lage von Krefeld und bietet eine Top Gelegenheit für Kapitalanleger. Das Gebäude wurde ursprünglich im Jahr 1955 errichtet und 2015 umfassend kernsaniert, einschließlich Elektrik, Sanitär, Heizung, Fenster, Böden sowie Fassade und Dachausbau.

Besonders hervorzuheben ist die hochwertige Ausführung der Sanierung: Neben modernen Ausstattungsmerkmalen wie zeitgemäßen Bädern, PVC-Designerplanke und Fliesenböden sowie energieeffizienten Kunststofffenstern mit Isolierverglasung, wurde auch die Heizungsanlage 2016 durch eine neue Gaszentralheizung ersetzt.

Im Rahmen des Dachgeschossausbaus wurden genehmigte Dachgauben errichtet, die für mehr Licht und Raum sorgen. Sämtliche statische und brandschutztechnische Nachweise liegen vollständig vor. Auch energetisch wurde das Gebäude optimiert, was sich unter anderem im vorliegenden Energie-Einsparnachweis widerspiegelt.

Die Immobilie bietet 4 großzügige und gut geschnittene Wohnungen, die sich über Erdgeschoss, Obergeschoss sowie das vollständig ausgebaute Dachgeschoss erstrecken. Sie eignen sich ideal für Singles, Paare oder kleine Familien. Alle Einheiten sind aktuell vermietet.

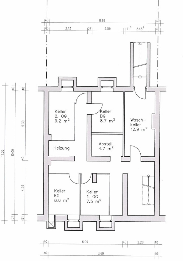
Ein gepflegter Keller bietet ausreichend Stauraum für die Mieter.

Lage

Die Dionysiusstraße befindet sich in unmittelbarer Nähe zur Krefelder Innenstadt und verbindet urbanes Leben mit ruhigem Wohnen. Die hervorragende Infrastruktur bietet fußläufig erreichbare Einkaufsmöglichkeiten, Schulen, Ärzte, Apotheken sowie eine breite Auswahl an Gastronomie.

Auch der ÖPNV ist hervorragend angebunden: Bushaltestellen und Straßenbahnlinien befinden sich in direkter Nähe. Der Hauptbahnhof ist ebenfalls schnell erreichbar. Die Nähe zu kulturellen Einrichtungen, Parks und Freizeitmöglichkeiten macht die Lage zudem auch für Mieter besonders attraktiv.

Ausstattung

- 4 Wohneinheiten, alle vermietet
- Sanierung 2015 inkl. Elektrik, Sanitär, Fenster, Dach, Böden
- Neue Gaszentralheizung (2016)
- Kunststofffenster mit 2-fach-Isolierverglasung
- Helle, moderne Bäder mit Dusche oder Wanne
- Zeitgemäße Bodenbeläge (PVC-Designerplanke, Fliesen)
- Ausbau des Dachgeschosses mit genehmigten Dachgauben
- Voll unterkellert mit separaten Kellerräumen
- Gepflegtes Treppenhaus
- Ansprechender Gesamteindruck
- Energieeinsparnachweis, Schallschutznachweis, Brandschutz- und Statik-Dokumente vorhanden
- Ruhiger Gartenbereich

Sonstige Informationen

Es liegt ein Energiebedarfsausweis vor.
Dieser ist gültig bis 5.10.2026.
Endenergiebedarf beträgt 76.00 kwh/(m²*a).
Wesentlicher Energieträger der Heizung ist Erdgas leicht.
Das Baujahr des Objekts lt. Energieausweis ist 1955.
Die Energieeffizienzklasse ist C.

Aufteilung
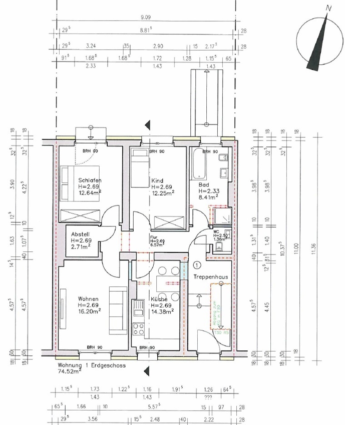
EG - 74,52 m² - 3 Zimmer (Küche, Diele, Bad, Terrasse, Abstellraum und Gäste-WC)
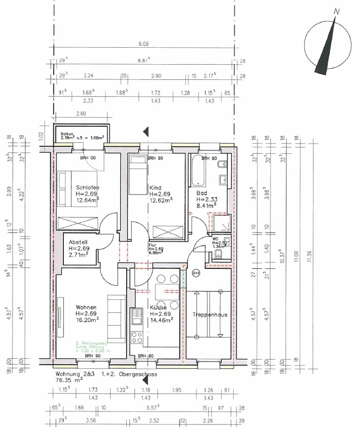
1. OG - 76,35 m² - 3 Zimmer (Küche, Diele, Bad, Balkon, Abstellraum und Gäste-WC)
2. OG - 76,35 m² - 3 Zimmer (Küche, Diele, Bad, Balkon, Abstellraum und Gäste-WC)
DG - 105,79 m² - 4 Zimmer (Küche, Diele, Bad, Dachterrasse, Abstellraum und Gäste-WC)

Umgebungskarte

Die dargestellte Position der Immobilie ist nur eine ungefähre Angabe.

Karte in Google Maps öffnen...

Top Angebot

Objektdaten

  • Objekt ID
    EB528
  • Objekttypen
  • Adresse
    47798 Krefeld / Stadtmitte
  • Wohnfläche
    326 m²
  • Grund­stücks­fläche
    169 m²
  • Nutzfläche
    52 m²
  • Vermietbare Fläche
    326 m²
  • Zimmer­anzahl
    13
  • Schlafzimmer
    9
  • Badezimmer
    4
  • Separate WC
    3
  • Befeuerung
    Gasheizung, Zentralheizung
  • Entfernungen
    Grundschule: 1 km
    Realschule: 1 km
    Gymnasium: 0 km
    Flughafen: 24 km
  • Baujahr
    1955
  • Zustand
    Gepflegt
  • Status
    vermietet
  • Verfügbar ab
    sofort
  • Käufer­provision
    4,76 % inkl. MwSt.
  • Kaufpreis
    619.000 EUR

Ausstattung / Merkmale

  • Abstellraum
  • Balkon/Terrasse Süd
  • Gasheizung
  • Separates WC
  • Zentralheizung

Energiebedarfsausweis

  • Gültig bis
    05.10.2026
  • Baujahr
    1955
  • Primärenergieträger
    ERDGAS_LEICHT
  • Energie­effizienz­klasse
    C
  • Endenergie­bedarf
    76.00 kWh/(m²·a)

Kontaktdaten

  • Name
    Herr Linus Mansel
  • Firma
    Königshof Immobilien GmbH
  • Adresse
    Heideckstr. 183
    47805 Krefeld
  • E-Mail Zentrale
    info@koenigshof.com
  • E-Mail Direkt
    info@koenigshof.com
  • Tel. Zentrale
    00492151391666
  • Tel. Durchwahl
    00491604400015
  • zum Kontaktformular

Direktanfrage