KR-Dießem: Architektenhaus mit mediterranem Garten und bildhübschem Ruhe-Patio

47805 Krefeld, Mehrfamilienhaus zum Kauf

Objektbeschreibung

Beschreibung

In Krefeld-Dießem befindet sich dieses hochattraktive Unikathaus mit extravaganter Architektur. Es kann als 2 oder 3 Familienhaus genutzt werden.
Das Haus wurde 1984 in 2 1/2-geschossiger Massivbauweise mit Vollkeller und Verklinkerung erstellt. Auffällig schönes Highlight sind unter anderem die auf der Vorder- und Rückseite vorgesetzten Glaserker. Diese sorgen vor allem zur Gartenseite hin für superschicke Galeriebereiche, die optimal belichtet sind.

Die Eigentümerwohnung erstreckt sich im Split-Level über 3 Ebenen, die durch eine Stahltreppe miteinander verbunden sind.
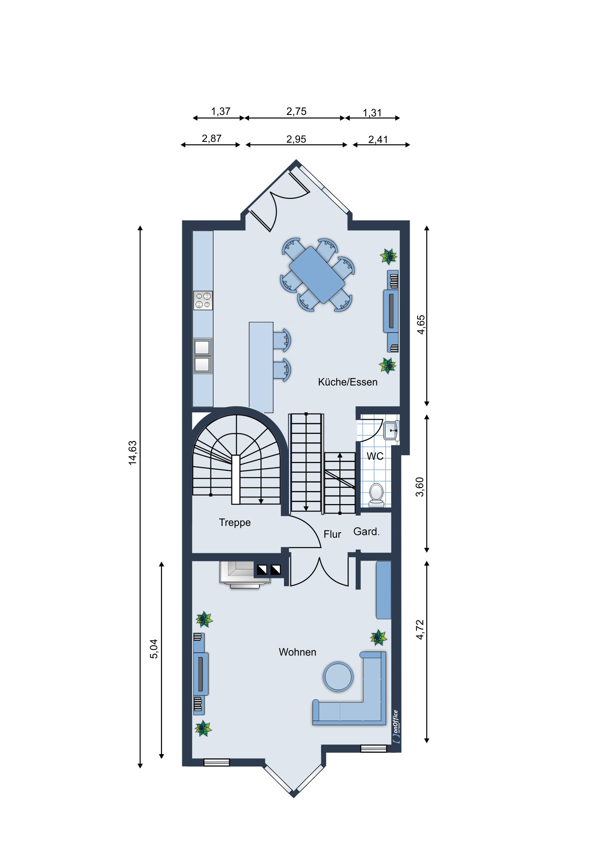
Im Erdgeschoss befindet sich die lichtdurchflutete Wohnküche mit Terracotta-Böden. Das mediterrane Thema wurde bei der Gartengestaltung geschickt wieder aufgegriffen: Hier befinden sich stimmungsvolle Patio-Bereiche, ein Freiluft-Refugium für einen wunderbar entspannten Aufenthalt im Garten, zum Teil abgeschirmt und versteckt zwischen historischen Steinen. Dahinter erstreckt sich eine imposante Rasenfläche, an dessen Kopfende sich eine Blockhütte befindet.

Zurück im Haus gelangen Sie eine halbe Etage höher in den Wohnbereich mit offenem Kamin. Dank einer doppelflügigen Glas-Kassettentür können Sie den Wohnbereich sowohl offen als auch geschlossen gestalten.

Gartenseitig - auf einer Empore - liegt ein lichtdurchfluteter Lese- und Officebereich, der mit deckenhohen Bücherregalen ausgestattet ist.

Der oberste Teil der Wohnung ist nicht nur über die interne Treppe zu erreichen, sondern auch vom allgemeinen Treppenhaus. Hier gibt es neben einem weiß gefliesten Duschbad und Ankleidebereich ein großes Schlaf- oder Gästezimmer. Der Bereich lässt sich aufgrund des eigenen Eingangs auch prima als Büro oder separat zu vermietendes Apartment nutzen.

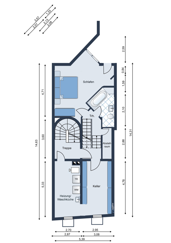
Der Schlafbereich ist separiert und liegt im Souterrain des Hauses. Das Schlafzimmer gewinnt dank der großen Fenster viel Tageslicht und hat zudem einen eigenen Gartenzugang. Ein angrenzendes Bad mit Wanne und Dusche und ein begehbarer Kleiderschrank runden das Raumangebot ab. Von hier gelangen Sie in den Kellerbereich. Hier gibt es neben dem üblichen Hausanschlussraum mit Waschmaschinenanschluss einen großen Vorratsraum.

Die Einliegerwohnung ist über das allgemeine Treppenhaus erreichbar. Die 2,5 Zimmerwohnung bietet ein tolles Wohnzimmer mit zwei kleinen Abstellräumen. Der Erker präsentiert sich hier als Sonnenbalkon mit Weitblick über die benachbarten Gärten. Drei Stufen höher - straßenseitig - liegt die Wohnküche. Von hier aus führt eine Treppe in den Spitzboden des Hauses, der als Schlafzimmer ausgebaut wurde. Diese Fläche ist wohnbaurechtlich nicht genehmigt. Ein weiß gefliestes Duschbad mit Waschmaschinenanschluss rundet das Raumangbot ab.

Dem Haus vorgelagert sind zwei integrierte Stellplätze. Der rechte bietet direkten Zugang zur Eigentümerwohnung.

Die Eigentümerwohnung wird im Spätsommer frei. Die Dachgeschosswohnung ist mit einer Kaltmiete von € 620,00 € zzgl. 20,00 € für die Einbauküche gut vermietet.

Unser Fazit: Eine top gepflegte Immobilie mit hohem Freizeitwert, die Sie ohne aufwendige Modernisierungsmaßnahmen beziehen können.

Lage

Das Haus befindet sich im Herzen der Stadt Krefeld - in Dießem, nahe dem Helios Klinikum sowie dem Krankenhaus Maria Hilf. Einkaufsmöglichkeiten wie EDEKA, Aldi und DM sind bequem mit dem Rad erreichbar. Ebenso die Innenstadt, die eine vielfältige Gastronomieszene, das Stadttheater, das Kaiser-Wilhelm-Museum sowie ein großes Angebot an kulturellen Veranstaltungen bietet. Die Haltestelle der U76, die direkt nach Düsseldorf fährt, ist ganz in der Nähe. Die Autobahn A 57 Richtung Moers/Düsseldorf ist ebenso gut erreichbar.

Ausstattung

- Terracottaböden im EG
- Designerplanken im DG
- 2022 neue Heizungsverteiler
- 2017 neue Wärmedämmung im DG
- 2008 Gaszentralheizung mit zentraler Warmwasserversorgung als Fußbodenheizung
- Warmwasserversorgung im DG über Durchlauferhitzer
- 3 Bäder in weiß von 1984

Sonstige Informationen

Es liegt ein Energieverbrauchsausweis vor.
Dieser ist gültig bis 22.4.2031.
Endenergieverbrauch beträgt 156.00 kwh/(m²*a).
Das Baujahr des Objekts lt. Energieausweis ist 1984.

Wohnung 1 Wfl. 107,69 m² 3 ZK2D Terrasse Garten
Wohnung 2 Wfl. 32,61 m² 1 ZD
Wohnung 3 Wfl. 66,37 m² 2 ZKDB

Umgebungskarte

Die dargestellte Position der Immobilie ist nur eine ungefähre Angabe.

Karte in Google Maps öffnen...

verkauft

Dieses Objekt ist zur Zeit leider nicht verfügbar.

Objektdaten

  • Objekt ID
    JZ107
  • Objekttypen
  • Adresse
    47805 Krefeld
  • Wohnfläche
    207 m²
  • Grund­stücks­fläche
    640 m²
  • Nutzfläche
    30 m²
  • Zimmer­anzahl
    7
  • Schlafzimmer
    4
  • Badezimmer
    3
  • Separate WC
    1
  • Befeuerung
    Gasheizung, Fußbodenheizung
  • Entfernungen
    Grundschule: 2 km
    Realschule: 2 km
    Gymnasium: 2 km
    Flughafen: 19 km
  • Baujahr
    1984
  • Zustand
    Gepflegt
  • Verfügbar ab
    Spätsommer 2025
  • Stellplätze
    Freiplatz: 2
  • Preis
    auf Anfrage

Ausstattung / Merkmale

  • Abstellraum
  • Balkon/Terrasse West
  • Freier Stellplatz
  • Fußbodenheizung
  • Gasheizung
  • Kamin
  • Separates WC

Energieverbrauchsausweis

  • Gültig bis
    22.04.2031
  • Baujahr
    1984
  • Befeuerungsart
    Gasheizung, Fußbodenheizung
  • Energie­verbrauchs­kennwert
    156.00 kWh/(m²·a)

Kontaktdaten

  • Name
    Frau Lina Mansel
  • Firma
    Königshof Immobilien GmbH
  • Adresse
    Heideckstr. 183
    47805 Krefeld
  • E-Mail Zentrale
    info@koenigshof.com
  • E-Mail Direkt
    info@koenigshof.com
  • Tel. Zentrale
    00492151391666
  • Tel. Durchwahl
    00491604400455