Attraktives freistehendes 3-Familienhaus in begehrter Bockumer Lage

47800 Krefeld / Bockum, Mehrfamilienhaus zum Kauf

Objektbeschreibung

Beschreibung

In familienfreundlicher Lage von Krefeld-Bockum befindet sich dieses attrakive und großzügige Dreifamilienhaus. Es eignet sich ideal als Mehrgenerationenhaus, selbstverständlich ist auch eine Teilvermietung problemlos möglich.

Das Haus wurde 1970 in 2 1/2-geschossiger Massivbauweise mit Klinkerfassade, Satteldach und Vollkeller errichtet und befindet sich in einem baujahr-typischen Zustand.

Die Einheiten teilen sich wie folgt auf:

Erdeschoss (Hauptwohnung):
Die Erdgeschosswohnung verfügt über einen separaten Eingang auf der rechten Seite des Hauses, was der Wohnung einen Haus-in-Haus-Charakter verleiht.
Die ca. 103 m² teilen sich geschickt auf: Der Eingangsbereich empfängt Sie mit einer angenehmen Größe und praktischer Garderobennische. Auch das Gäste-WC (mit Fenster) ist von Diele aus erreichbar, rechter Hand ist die Küche mit Zugang zum Garten.

Zwei Schlafzimmer sowie ein Tageslichtbad mit Wanne und Dusche befinden sich straßenseitig.

Der großzügige Wohnbereich mit Kamin ist ausgesprochen gemütlich und gewährt einen schönen Blick auf die XXL-Terrasse und den uneinsehbaren Garten. Praktisch: Von hier aus haben Sie Zugang zur Garage, zudem gibt es eine Kelleraußentreppe.
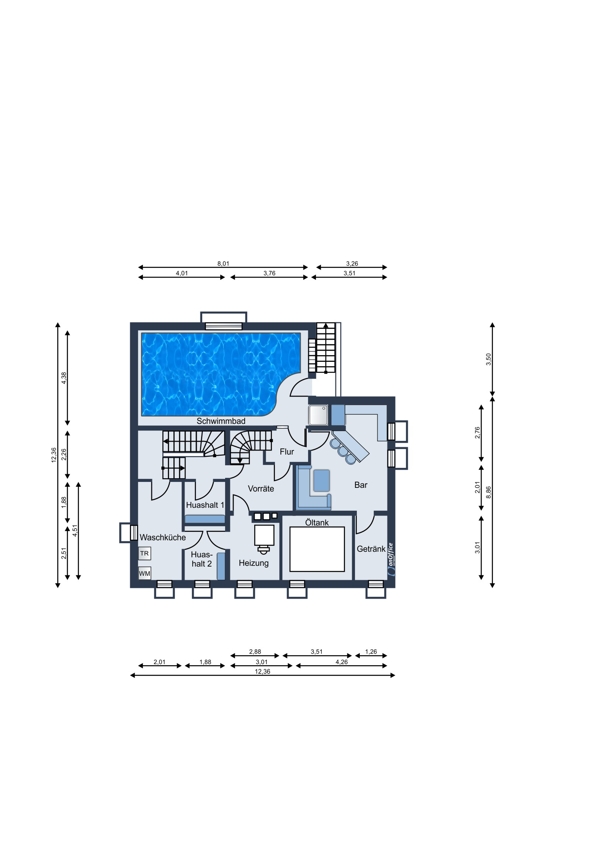
Vom Wohnzimmer aus gelangen Sie auch ins Kellergeschoss. Hier gibt es neben den üblichen Versorgungs- und Kellerräumen ein ehemaliges Schwimmbad sowie eine Kellerbar.

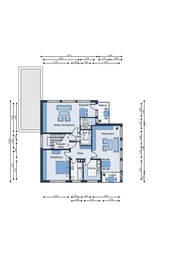
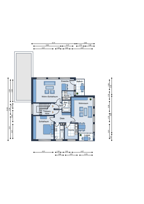
1. Obergeschoss/Einliegerwohnugen:
Die Wohnungen im 1. OG verfügen über einen separaten Eingang auf der linken Seite des Hauses. Das Treppenhaus führt nicht nur ins 1. OG, sondern auch in den Spitzboden und in den Keller.

1. Obergeschoss rechts:
Diese 2 Zimmerwohnung liegt straßenseitig und überzeugt mit gutem Grundriss. Die Küche ist separiert. Das Tageslichtbad mit Wanne und Dusche verfügt über eine angenehme Größe.

1. Obergeschoss links:
Das hübsche Apartment ist zum Garten hin ausgerichtet. Es verfügt über ein großes Wohn/-Schlafzimmer mit Blick ins Grüne sowie einen Balkon, eine separaten Kochnische und ein Wannenbad.

DG:
Im Dachgeschoss befinden sich 2 weitere Zimmer, die sich beispielsweise als Homeoffice anbieten. Ein Gäste-WC ist auf dieser Wohnebene ebenfalls vorhanden.

Unsere Meinung: Ein sehr schönes Haus mit viel Potenzial.

Lage

Das Haus liegt in einer familiären Wohngegend von Bockum.
Bockum gehört seit jeher zu einer der beliebtesten Stadtteilen Krefelds. Eine schöne Nachbarbebauung und zahlreiche Grünflächen prägen das Gesamtbild.

Der Crönpark/Schönwasserpark ist fußläufig zu erreichen und lässt zum Verweilen, Spazieren und Radfahren ein.
Auch die Nähe zum Stadtwald bietet einen hohen Freizeitwert. Es gibt hier zwei Golfplätze, mehrere Tennisclubs, eine Galopprennbahn und einen renommierten Hockeyverein. Auch ein beliebter Schwimmverein sowie die Museen Haus Lange und Haus Esters machen den Stadtteil lebenswert und bunt.

Von hier liegt vieles in „Bis gleich“-Entfernung: Kindergärten, Schulen, Supermärkte, Bäcker, Ärzte, Apotheken, Restaurants. Und nicht zuletzt der beliebte Großmarkt mit seinen gastronomischen Angeboten.

Gut verbunden!
Zwei Bahn- sowie eine Buslinie binden Krefeld-Bockum an den Öffentlichen Nahverkehr an. Die Autobahn der A57 verbindet es mit dem „Rest der Welt“. Die schnelle Erreichbarkeit der Zentren des Rhein-Ruhrgebietes wie Düsseldorf, Köln, Duisburg und Essen macht den Krefelder Norden zu einem optimalen Wohnstandort für jede Lebensplanung.

Ausstattung

Baujahr und Bauweise:
Das Gebäude wurde 1970 in massiver Bauweise errichtet. Diese Bauart zeichnet sich durch ihre Langlebigkeit und Stabilität aus.

Heizung:
Die Ölheizung stammt aus dem Jahr 2012 und ist damit vergleichsweise modern. Jedoch ist es wichtig zu erwähnen, dass Ölheizungen in den kommenden Jahren aufgrund gesetzlicher Bestimmungen zunehmend ersetzt werden müssen.

Fenster:
Doppelt verglasten Kunststofffenster

Böden:
Verwendung von Marmor Jura gelb und Mosaikparkett

Bäder:
Die Badezimmer befinden sich im Ursprungszustand und könnten eine Modernisierung vertragen.

Außenbereich:
Der großzügige Balkon (ca. 6 m²) im 1.OG und die teilweise überdachte Terrasse (ca. 26 m²) laden zum Verweilen im Freien ein.

Keller:
Der Keller bietet mit seinen verschiedenen Räumen viel Stauraum und zusätzliche Nutzungsmöglichkeiten. Das Schwimmbad ist ein besonderes Highlight, allerdings sollte der Zustand der Technik und der Beckenabdichtung geprüft werden.

Garage und Stellplätze:
Die Garage und die zusätzlichen Stellplätze bieten ausreichend Platz für Fahrzeuge.

Sonstige Informationen

Es liegt ein Energiebedarfsausweis vor.
Dieser ist gültig bis 26.7.2033.
Endenergiebedarf beträgt 245.00 kwh/(m²*a).
Wesentlicher Energieträger der Heizung ist Öl.
Das Baujahr des Objekts lt. Energieausweis ist 1970.
Die Energieeffizienzklasse ist G.

Umgebungskarte

Die dargestellte Position der Immobilie ist nur eine ungefähre Angabe.

Karte in Google Maps öffnen...

verkauft

Dieses Objekt ist zur Zeit leider nicht verfügbar.

Objektdaten

  • Objekt ID
    RY756
  • Objekttypen
  • Adresse
    47800 Krefeld / Bockum
  • Wohnfläche
    206 m²
  • Grund­stücks­fläche
    522 m²
  • Nutzfläche
    78 m²
  • Zimmer­anzahl
    6
  • Schlafzimmer
    5
  • Badezimmer
    3
  • Separate WC
    2
  • Befeuerung
    Ölheizung
  • Baujahr
    1970
  • Zustand
    Gepflegt
  • Verfügbar ab
    sofort
  • Stellplätze
    Freiplatz: 3
  • Preis
    auf Anfrage

Ausstattung / Merkmale

  • Freier Stellplatz
  • Ölheizung
  • Separates WC

Energiebedarfsausweis

  • Gültig bis
    26.07.2033
  • Baujahr
    1970
  • Primärenergieträger
    OEL
  • Energie­effizienz­klasse
    G
  • Endenergie­bedarf
    245.00 kWh/(m²·a)

Kontaktdaten

  • Name
    Herr Linus Mansel
  • Firma
    Königshof Immobilien GmbH
  • Adresse
    Heideckstr. 183
    47805 Krefeld
  • E-Mail Zentrale
    info@koenigshof.com
  • E-Mail Direkt
    info@koenigshof.com
  • Tel. Zentrale
    00492151391666
  • Tel. Durchwahl
    00491604400015