Wohnen im Tiergartenviertel! Charmantes Backsteinhaus mit viel Entwicklungspotenzial

47800 Krefeld, Einfamilienhaus zum Kauf

Objektbeschreibung

Beschreibung

Auf einem herrlichen, parkähnlichen Grundstück, in wunderbarer Lage von Krefeld-Bockum, befindet sich dieses charmante Backsteinhaus aus den 30er Jahren. Es integriert sich perfekt in ein super gepflegtes Umfeld und in eine der schönsten Straßen der Stadt.

Das Haus ist einseitig angebaut und präsentiert sich mit 2 identischen Wohnungen im EG und OG sowie 4 Mansardenzimmern im Dachgeschoss.

Es wurde 1939 konventionell in Massivbauweise mit Vollkeller, Vollverklinkerung und Krüppelwalmdach erstellt. Die Zwischendecke zum EG besteht aus Beton, zu den Obergeschossen aus Holz wie auch das Treppenhaus. Im Hauseingangsbereich sind Solnhofer-Platten verlegt.

Im Jahr 1950 wurde eine Garage hinter dem Gebäude errichtet. Achtung Sonnenanbeter: Auf der Garage befindet sich eine rund 25 m² große Dachterrasse mit Zugang zum Garten.

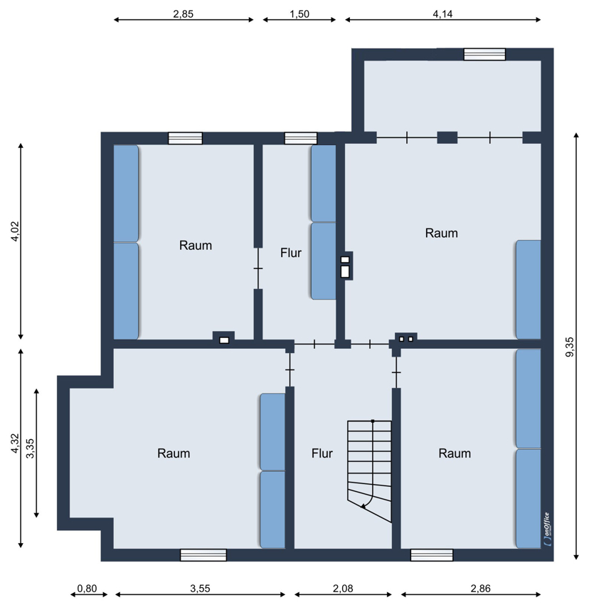
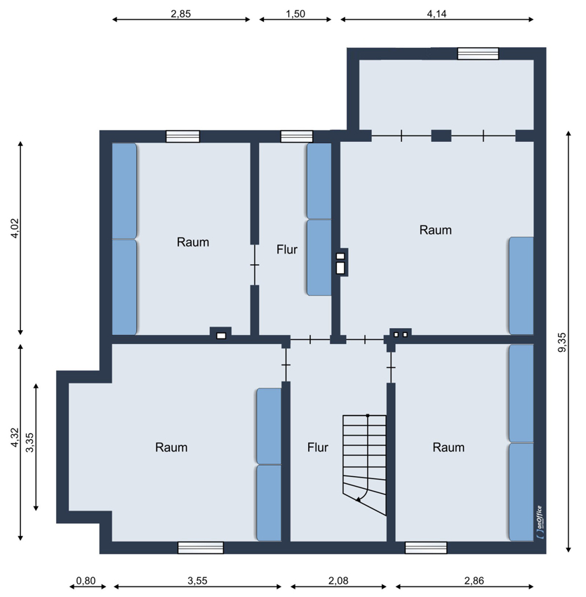
Erdgeschoss sowie Obergeschoss bieten je rund 70 m² große 2-Zimmerwohnungen. Gut zu wissen: Eine Neuaufteilung als 3-Zimmerwohnungen wäre ebenfalls möglich. Das Auge wohnt mit: Aus nahezu jedem Raum darf Ihr Blick ins Grüne schweifen, welche Lage bietet schon diesen Luxus?

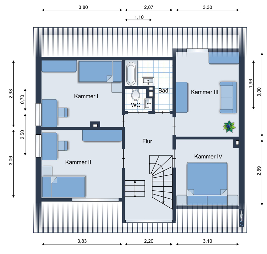
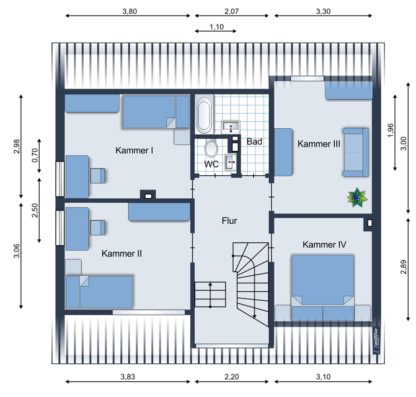
Im Dachgeschoss belaufen sich die gemütlichen Mansardenzimmer mit Wannenbad auf rund 46 m² und sind als Nutzfläche ausgewiesen. Wir finden: Die ideale Etage für ältere Kinder oder ein Au-pair.

Garten
Üppig grüne Natur - Ihr Garten Eden! Das ca. 1.000 m² große Grundstück ist zweigeteilt. Im vorderen Bereich wurde der Garten zur Nutzung mit zwei Terrassen geschmackvoll angelegt. Der hintere Bereich (ca. 400 m²) ist eine herrlich grüne Rasen-Oase mit imposantem Baubestand - Sie werden es lieben! Wer gerne mal die Hände "in Erde steckt", wird sich in diesem Garten austoben und verwirklichen dürfen. Apropos Toben: Paradiesisch sind die Aussichten für Ihre Kinder - Fläche zum Spielen ist mehr als reichlich vorhanden.

Fazit
Eine wirklich hochinteressante Immobilie, die Sie sowohl als Einfamilienhaus wie auch als Zweifamilienhaus nutzen können. Übrigens stehen Backsteinhäuser nach wie vor hoch im Kurs, nicht nur aufgrund der wohligen Ausstrahlung, sondern auch wegen der geradlinigen Grundrisse, die perfekte Stellmöglichkeiten bieten.
Tageslicht ist Lebenselixier und wichtige Grundlage unserer Gesundheit. Daran können Sie einen Haken machen: Das Haus ist gut belichtet.

Natürlich benötigt das Gebäude eine energetische Modernisierung und das ein oder andere Invest. Dann aber haben Sie hier ein wirkliches Juwel in absolut perfekter Wohnlage.

Lage

Das Haus befindet sich in sehr guter Lage von Krefeld-Bockum, grün und zugleich zentral. Während andere noch Richtung Stadtrand kurven, spazieren Sie schon durch den Zoo oder lassen Ihren Schrittzähler rattern bei einer Spazier- oder Joggingrunde.

Zahlreiche Grünflächen prägen das Gesamtbild in diesem Stadtteil: Der Kaiserpark, Schönwasserpark, Schönhausenpark und nicht zuletzt der Stadtwald mit seinem vielfältigen Sport- und Freizeitangebot (Golf, Tennis, Hockey, Pferderennbahn). Der Krefelder Zoo ist über die Stadtgrenzen hinaus bekannt und beliebt. Das Badezentrum mit Hallen- und Freibad ist bei Jung und Alt gefragt.

Zudem bietet Bockum eine sehr gute Infrastruktur. Alle Einkaufsmöglichkeiten für den täglichen Bedarf, Ärzte und Apotheken können bequem erreicht werden. Kindergärten, Grundschulen und weiterführende Schulen befinden sich in familienfreundlicher Nähe. Eine gute Verkehrsanbindung an das Autobahnnetz rundet diesen attraktiven Standort ab.

Den Großmarkt mit seinem vielfältigen Gastronomieangebot erreichen Sie ganz bequem mit dem Rad oder zu Fuß.

Ausstattung

- Eiche-Mosaikparkett in EG und OG
- 1995 Einbau einer Viessmann Gaszentralheizung mit Durchlauferhitzern
- 2004 weiße Kunststofffenster mit Isoverglasung
- Einfachverglaste Holzrahmenfenster im DG
- 2004 Erneuerung Küche OG mit neuem Fliesenspiegel, Bodenbelag, Elektro
- 2004 neues Duschbad OG
- 2004 neuer Elektrostahlkasten
- 2007 neues Duschbad EG
- 2008 neue Terrasse
- Verzinkte Treppe zum Garten

Sonstige Informationen

Es liegt ein Energiebedarfsausweis vor.
Dieser ist gültig bis 13.8.2035.
Endenergiebedarf beträgt 278.00 kwh/(m²*a).
Wesentlicher Energieträger der Heizung ist Gas.
Das Baujahr des Objekts lt. Energieausweis ist 1939.
Die Energieeffizienzklasse ist H.

Wohn- und Nutzflächen

EG Wohnen 33 m²
Schlafen 15 m²
Diele 5 m²
Küche 13 m²
Bad 5 m²
Terrasse 25 m² (anteilig 5 m²)
76 m²

OG Wohnen 33 m²
Schlafen 15 m²
Diele 5 m²
Küche 13 m²
Bad 5 m²
71 m²

DG Kammer I 11 m²
Kammer II 12 m²
Kammer III 10 m²
Kammer IV 9 m²
Bad/WC 4 m²
Flur 5 m²
51 m²

Umgebungskarte

Die dargestellte Position der Immobilie ist nur eine ungefähre Angabe.

Karte in Google Maps öffnen...

Top Angebot

Objektdaten

  • Objekt ID
    MZ889
  • Objekttypen
  • Adresse
    47800 Krefeld
  • Wohnfläche
    147 m²
  • Grund­stücks­fläche
    989 m²
  • Nutzfläche
    130 m²
  • Zimmer­anzahl
    8
  • Schlafzimmer
    6
  • Badezimmer
    3
  • Separate WC
    1
  • Befeuerung
    Gasheizung, Zentralheizung
  • Entfernungen
    Grundschule: 1 km
    Gymnasium: 1 km
    Flughafen: 24 km
  • Baujahr
    1939
  • Zustand
    Renovierungsbedürftig
  • Verfügbar ab
    nach Absprache
  • Käufer­provision
    3,57 % incl. MwSt. Käufercourtage
  • Kaufpreis
    659.000 EUR

Ausstattung / Merkmale

  • Balkon/Terrasse Ost
  • Garage
  • Gasheizung
  • Separates WC
  • Zentralheizung

Energiebedarfsausweis

  • Gültig bis
    13.08.2035
  • Baujahr
    1939
  • Primärenergieträger
    GAS
  • Energie­effizienz­klasse
    H
  • Endenergie­bedarf
    278.00 kWh/(m²·a)

Kontaktdaten

  • Name
    Herr Dipl.-Kfm. Michael Giesen
  • E-Mail Zentrale
    info@koenigshof.com
  • E-Mail Direkt
    info@koenigshof.com
  • Tel. Zentrale
    00492151391666
  • Tel. Durchwahl
    00492151391666
  • zum Kontaktformular

Direktanfrage