Wohnen mit hohem Entspannungsfaktor: Freistehendes Einfamilienhaus auf großem Grundstück in Toplage

47802 Krefeld, Einfamilienhaus zum Kauf

Objektbeschreibung

Beschreibung

Im wunderbar grünen Krefeld-Traar befindet sich dieses attraktive, freistehende Einfamilienhaus in 1 1/2 geschossiger, massiver Bauweise. Das Haus wurde 1979 konventionell gebaut, mit gemauertem Keller und abgeschlepptem Dach, Halbunterkellerung, Vollverklinkerung sowie einem Satteldach.

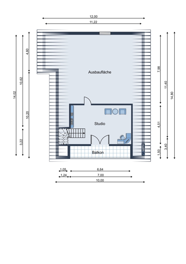
Sehr schön gelöst: Die Raumaufteilung des Hauses mutet wie ein Bungalow an, da sich die 112 m ² Wohnfläche im Erdgeschoss in einen Wohn- und einen Schlafbereich mit 3 Schlafzimmern gliedern. Bei immer wärmer werdenden Sommern ist bei diesem Haus angenehmes Schlafen gewährleistet. Der 4. Raum befindet sich im Obergeschoss und ist als Studio definiert.

Energieeffizienz
Gerne stellen wir Ihnen einen Energieberater zur Seite, der unter Berücksichtigung der aktuell möglichen KfW-Förderungen ein Energiekonzept für das Haus entwickelt.

Ein großer Pluspunkt ist die Ausbaureserve: Im Obergeschoss besteht die Möglichkeit, weitere rund 40 m² Wohnfläche zu generieren.

Grundstück
Sie lieben Grünblick? Das Haus ist nahezu perfekt auf dem hinteren Teil des Grundstücks positioniert, so dass Sie vom Wohnbereich aus die gesamte großzügige Gartenfläche genießen können. Der Garten ist mit aufwendigen Pflasterungen, einem Teich mit Brücke und altem Baumbestand abgelegt.

Garage
Die massiv gemauerte Doppelgarage ist mit elektrischem Schwingtor und seitlicher Zugangstüre zum Garten versehen.

Unser Fazit: Hier lohnt sich ein Investment für Ihre Familie! Die Kinder wachsen behütet, in sehr guter Lage, ohne Verkehrslärm auf.

Lage

Das Haus befindet am Ende einer Sackgasse, in einem reinen Wohngebiet. Das Grundstück ist umgeben von angrenzenden Gärten und bietet absolut ruhiges Wohnen. Das Zentrum von Traar ist fußläufig in 5 Minuten zu erreichen. In relativer Nähe befindet sich ein kleiner Park - ideal zum Gassigehen. Aufgrund der hohen Lebensqualität ist Traar der Stadtteil mit den höchsten Bodenrichtwerten in Krefeld (€ 610,00/m²). Traar ist quasi ein reiner Wohnstadtteil ohne nennenswerte Industrie, eingebettet und umgeben von Natur (Nieper Kuhlen/Egelsberg).
Alle Geschäfte des täglichen Bedarfs sowie Restaurants befinden sich in der nahe gelegenen Moerser Landstraße. Werden Sie doch Mitglied im Traarer Golfclub, der ein schönes Clubhaus in der Elfrather Golfmühle besitzt. Besuch von Auswärts? Diesen können Sie im nahegelegenen Mercure-Hotel unterbringen.

Ausstattung

- Isoverglaste Holzfenster
- Elektrofußbodenheizung
- Durchlauferhitzer
- Offener Kamin
- Weiße Holzpaneeldecken
- Kunststoffrollläden
- Holzeingangstüre
- 3 Schlafzimmer im EG und 1 im OG
- Rund 40 m² Ausbaufläche im OG
- Hochwertige Pflasterungen im Garten- und Eingangsbereich
- Doppelgarage mit elektrischem Schwingtor und Zugang zum Garten
- Teich
- Alter Baumbestand: Kastanie, amerikanischer Amberbaum
- Schiebetüre zur Westterrasse
- Dachdeckendämmung

Sonstige Informationen

Es liegt ein Energiebedarfsausweis vor.
Dieser ist gültig bis 26.1.2034.
Endenergiebedarf beträgt 178.40 kwh/(m²*a).
Wesentlicher Energieträger der Heizung ist Elektro.
Das Baujahr des Objekts lt. Energieausweis ist 1979.
Die Energieeffizienzklasse ist F.

EG

Wohnen 41,28 m²
Küche 8,73 m²
Eltern 17,03 m²
Bad 8,26 m²
KInd 14,03 m²
Diele 11,15 m²
Gäste-WC 2,31 m²
Windfang 5,16 m²
Abstellraum 1 0,84 m²
Abstellraum 2 0,61 m²

EG gesamt 118,82 m²

DG
Studio mit Balkon 22,60 m²
Wohnfläche gesamt 141,42 m²

Nutzfläche DG ca. 40 m²

Umgebungskarte

Die dargestellte Position der Immobilie ist nur eine ungefähre Angabe.

Karte in Google Maps öffnen...

neu

Objektdaten

  • Objekt ID
    MZ422
  • Objekttypen
  • Adresse
    47802 Krefeld
  • Wohnfläche
    141 m²
  • Grund­stücks­fläche
    844 m²
  • Nutzfläche
    95 m²
  • Zimmer­anzahl
    5
  • Schlafzimmer
    4
  • Badezimmer
    1
  • Separate WC
    1
  • Befeuerung
    Elektroheizung, Fußbodenheizung
  • Entfernungen
    Grundschule: 1 km
    Gymnasium: 4 km
    Flughafen: 24 km
  • Baujahr
    1979
  • Verfügbar ab
    sofort
  • Stellplätze
    Freiplatz: 2
    Garage: 2
  • Käufer­provision
    3,57 % incl. MwSt. Käufercourtage
  • Kaufpreis
    560.000 EUR

Ausstattung / Merkmale

  • Balkon/Terrasse Süd
  • Elektroheizung
  • Freier Stellplatz
  • Fußbodenheizung
  • Garage
  • Kamin
  • Separates WC

Energiebedarfsausweis

  • Gültig bis
    26.01.2034
  • Baujahr
    1979
  • Primärenergieträger
    ELEKTRO
  • Energie­effizienz­klasse
    F
  • Endenergie­bedarf
    178.40 kWh/(m²·a)

Kontaktdaten

  • Name
    Frau Lina Mansel
  • Firma
    Königshof Immobilien GmbH
  • Adresse
    Heideckstr. 183
    47805 Krefeld
  • E-Mail Zentrale
    info@koenigshof.com
  • E-Mail Direkt
    info@koenigshof.com
  • Tel. Zentrale
    00492151391666
  • Tel. Durchwahl
    00491604400455
  • zum Kontaktformular

Direktanfrage