KR-Oppum/Sackgasse: Attraktive grosse Haushälfte mit herrlichem uneinsehbarem Garten

47809 Krefeld, Doppelhaushälfte zum Kauf

Objektbeschreibung

Beschreibung

Diese hübsche Doppelhaushälfte aus dem Baujahr 1950 befindet sich in einer ruhigen Wohnlage von Krefeld-Oppum und bietet mit rund 135 m² Wohnfläche und einem 605 m² großen Grundstück ausreichend Platz für eine Familie mit 2 Kindern. Das Haus wurde in den vergangenen Jahren erweitert und in weiten Teilen instand gehalten.

Aufteilung & Ausstattung im Überblick:

Erdgeschoss:
Der Eingangsbereich empfängst Sie mit einer funktional geschnittenen Diele. Von hier aus gelangen Sie in die Küche und das im Jahr 2024 sanierte Duschbad (mit Fenster). Der großzügige Wohn-/Essbereich gewährt mit seinen großen Fensterflächen einen perfekten Lichteinfall. Zudem haben Sie hier Zugang zu Ihrer schönen Terrasse.

Obergeschoss:
Im Obergeschoss befinden sich das Elternschlafzimmer und ein Kinderzimmer sowie ein Wannenbad. Idealerweise ist auch dieses Bad mit einem Fenster versehen. Der Flur ist hell gestaltet, die Zimmer verfügen über Laminatboden, der mit nahezu jedem Einrichtungsstil kompatibel ist.

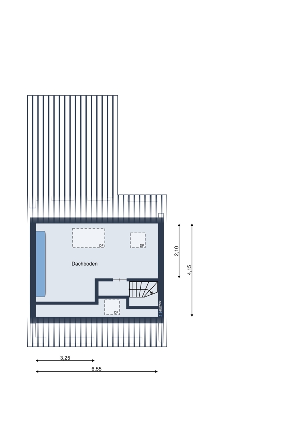
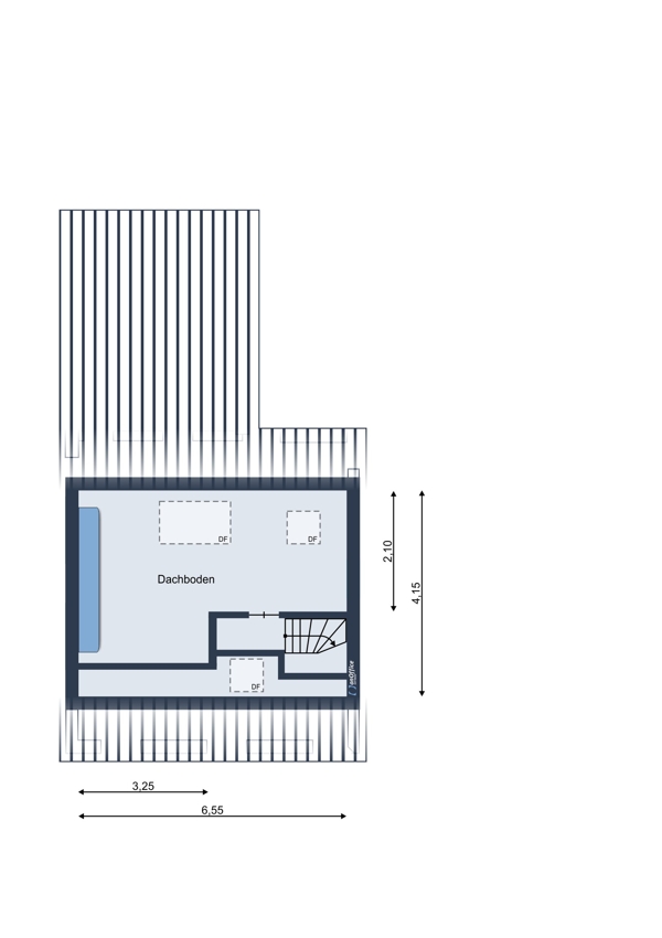
Dachgeschoss:
Das ausgebaute Dachgeschoss eignet sich ideal als Hobbybereich, Homeoffice oder Jugendzimmer. Zwei Dachflächenfenster fangen das Tageslicht ein.

Außenbereich & Garten
Das ca. 605 m² große Grundstück präsentiert sich mit einem vielseitig nutzbaren Garten, es gibt reichlich Platz für Kinder und natürlich für Hobbygärtner. Die überdachte, gepflasterteTerrasse, der alte Baumbestand, die Bepflanzung - rundum ein wunderbarer Rückzugsort, übrigens sowohl für Sonnenanbeter wie auch für Schattensuchende.

Ein kleiner Teich sowie Ziersträucher und Staudenbeete strukturieren den Garten, ohne ihn zu "überladen".

Apropos Hobbygärtner: Ein separates Gartenhaus mit Unterstand befindet sich im hinteren Bereich des Grundstücks und bietet zusätzlichen Stauraum für Gartengeräte, natürlich ebenso für Fahrräder oder Spielgeräte.

Fazit
Ein richtig hübsches Haus, das topgepflegt ist. Mit überschaubarem Aufwand lässt sich hier zusätzlicher Wohnkomfort schaffen.

Lage

Die Immobilie befindet sich in einem ruhigen Wohngebiet im Krefelder Stadtteil Oppum. Die Umgebung ist geprägt von gepflegter Wohnbebauung mit überwiegend Ein- und Zweifamilienhäusern. Die Lage zeichnet sich durch eine gute Erreichbarkeit des täglichen Bedarfs aus: Supermärkte, Bäckereien, Apotheken sowie Kindergärten und Schulen sind innerhalb weniger Minuten erreichbar.

Die Anbindung an den öffentlichen Nahverkehr ist gut – sowohl Bus- als auch Bahnverbindungen befinden sich in fußläufiger Entfernung. Der Krefelder Hauptbahnhof ist mit dem Auto oder Fahrrad ebenfalls schnell zu erreichen. Über die nahegelegenen Anschlussstellen der A57 und B288 besteht zudem eine gute Anbindung an das regionale und überregionale Straßennetz, insbesondere in Richtung Düsseldorf, Neuss und das Ruhrgebiet.

Trotz der verkehrsgünstigen Lage bietet das Umfeld angenehme Wohnruhe. In der näheren Umgebung finden sich außerdem Grünflächen, Spazierwege und Sporteinrichtungen, die zur Freizeitgestaltung einladen.

Ausstattung

- Modernisiertes Duschbad EG (2024)
- Anbau Wohnzimmer (1964) und Schlafzimmer (1985)
- Ausbau Dachgeschoss (1985)
- Gaszentralheizung (2016)
- Doppelgarage + 2 Stellplätze davor
- Terrasse mit Pergola (2008)

Sonstige Informationen

Es liegt ein Energiebedarfsausweis vor.
Dieser ist gültig bis 7.2.2034.
Endenergiebedarf beträgt 209.00 kwh/(m²*a).
Wesentlicher Energieträger der Heizung ist Erdgas leicht.
Das Baujahr des Objekts lt. Energieausweis ist 1950.
Die Energieeffizienzklasse ist G.

Umgebungskarte

Die dargestellte Position der Immobilie ist nur eine ungefähre Angabe.

Karte in Google Maps öffnen...

verkauft

Dieses Objekt ist zur Zeit leider nicht verfügbar.

Objektdaten

  • Objekt ID
    HM449
  • Objekttypen
  • Adresse
    47809 Krefeld
  • Wohnfläche
    131 m²
  • Grund­stücks­fläche
    605 m²
  • Nutzfläche
    70 m²
  • Zimmer­anzahl
    4
  • Schlafzimmer
    3
  • Badezimmer
    2
  • Befeuerung
    Gasheizung, Zentralheizung
  • Entfernungen
    Grundschule: 2 km
    Realschule: 7 km
    Gymnasium: 3 km
    Flughafen: 18 km
  • Baujahr
    1950
  • Zustand
    Gepflegt
  • Verfügbar ab
    ab sofort
  • Stellplätze
    Freiplatz: 4
  • Preis
    auf Anfrage

Ausstattung / Merkmale

  • Abstellraum
  • Freier Stellplatz
  • Gasheizung
  • Zentralheizung

Energiebedarfsausweis

  • Gültig bis
    07.02.2034
  • Baujahr
    1950
  • Primärenergieträger
    ERDGAS_LEICHT
  • Energie­effizienz­klasse
    G
  • Endenergie­bedarf
    209.00 kWh/(m²·a)

Kontaktdaten

  • Name
    Herr Linus Mansel
  • Firma
    Königshof Immobilien GmbH
  • Adresse
    Heideckstr. 183
    47805 Krefeld
  • E-Mail Zentrale
    info@koenigshof.com
  • E-Mail Direkt
    info@koenigshof.com
  • Tel. Zentrale
    00492151391666
  • Tel. Durchwahl
    00491604400015