Weitblick inklusive: Frischsanierte 2 Zimmerwohnung mit schicker Einbauküche und Balkon

47803 Krefeld, Etagenwohnung zum Kauf

Objektbeschreibung

Beschreibung

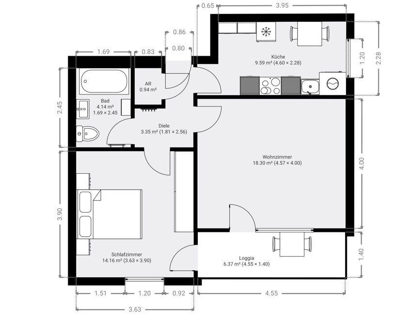
Diese kernsanierte 2 Zimmerwohnung befindet sich im 4. Obergeschoss eines gepflegten Mehrfamilienhauses. Bereits beim Betreten wird deutlich: Hier wurde an nichts gespart.
Linker Hand erwartet Sie eine hochwertige Einbauküche der Marke Häcker – grifflos, in weißem Hochglanzdesign mit einer Arbeitsplatte in Spachtelbeton-Optik (Graphit). Ein Traum für alle, die gerne kochen.

Für zusätzlichen Komfort sorgt eine praktische Abstellkammer, die ausreichend Platz für Staubsauger, Putzeimer und andere Haushaltsutensilien bietet.
Sowohl das Schlafzimmer als auch das Wohnzimmer verfügen über einen Zugang zum Balkon, auf dem Sie Ihre Tasse Kaffee in der Vormittagssonne genießen können.
Alle Wohnräume sind mit modernem Vinylboden von Tarkett und weißen Fußleisten ausgestattet.
Das Badezimmer überzeugt mit einer Duschwanne sowie hochwertigen Sanitärelementen von Villeroy & Boch. Das Feinsteinzeug in zeitloser Terrazzo-Natursteinoptik rundet das stilvolle Erscheinungsbild ab.

Rundum ein klasse Objekt, egal ob für Eigennutzer oder Kapitalanleger!

Lage

Die Wohnung befindet sich in Benrad-Nord, nahe dem Übergang zum Stadtteil Kempener Feld / Baackeshof.
Die Lage bietet eine gute Anbindung an das Stadtzentrum. Über die B9 gelangen Sie auf schnellem Wege nach Kempen, Kerken und zur Autobahnauffahrt A40.

Alle Geschäfte des täglichen Bedarfs sind bequem erreichbar, zudem befindet sich das Schulzentrum Horkesgath ganz in der Nähe.

Auch für Ihre Freizeit ist gesorgt: Die Mehrzweckarena Königpalast, das Eisstadion und ein Tennisclub sind bequem zu Fuß erreichbar

Ausstattung

- Fernwärme
- Rohre größtenteils erneuert
- Elektrik überarbeitet inklusive neuer Schaltkasten mit 2 FI Schaltern
- Markenprodukte von Villeroy & Boch
- Feinsteinzeug in moderner und zeitloser Terrazzo-Natursteinoptik.
- Moderner Vinylboden

Sonstige Informationen

Es liegt ein Energiebedarfsausweis vor.
Dieser ist gültig bis 20.11.2028.
Endenergiebedarf beträgt 139.28 kwh/(m²*a).
Wesentlicher Energieträger der Heizung ist Fernwärme.
Das Baujahr des Objekts lt. Energieausweis ist 1968.
Die Energieeffizienzklasse ist E.

Umgebungskarte

Die dargestellte Position der Immobilie ist nur eine ungefähre Angabe.

Karte in Google Maps öffnen...

neu

Objektdaten

  • Objekt ID
    HA625
  • Objekttypen
  • Adresse
    47803 Krefeld
  • Etage
    4
  • Wohnfläche
    58 m²
  • Max. Personenanzahl
    2
  • Zimmer­anzahl
    2
  • Schlafzimmer
    1
  • Badezimmer
    1
  • Befeuerung
    Zentralheizung
  • Entfernungen
    Grundschule: 1 km
    Realschule: 1 km
    Gymnasium: 1 km
    Flughafen: 23 km
  • Baujahr
    1968
  • Zustand
    Teil-/Vollsaniert
  • Verfügbar ab
    Kurzfristig möglich
  • Hausgeld
    250 EUR
  • Käufer­provision
    3,57 % inkl. MwSt.
  • Kaufpreis
    165.000 EUR

Ausstattung / Merkmale

  • Abstellraum
  • Balkon/Terrasse Ost
  • Fernwärme
  • Personenaufzug
  • Zentralheizung

Energiebedarfsausweis

  • Gültig bis
    20.11.2028
  • Baujahr
    1968
  • Primärenergieträger
    FERN
  • Energie­effizienz­klasse
    E
  • Endenergie­bedarf
    139.28 kWh/(m²·a)

Kontaktdaten

  • Name
    Herr Jonathan List
  • Firma
    Königshof Immobilien GmbH
  • Adresse
    Heideckstr. 183
    47805 Krefeld
  • E-Mail Zentrale
    info@koenigshof.com
  • E-Mail Direkt
    info@koenigshof.com
  • Tel. Zentrale
    00492151391666
  • Tel. Durchwahl
    004915168415287
  • Mobil
    004915168415287
  • zum Kontaktformular

Direktanfrage